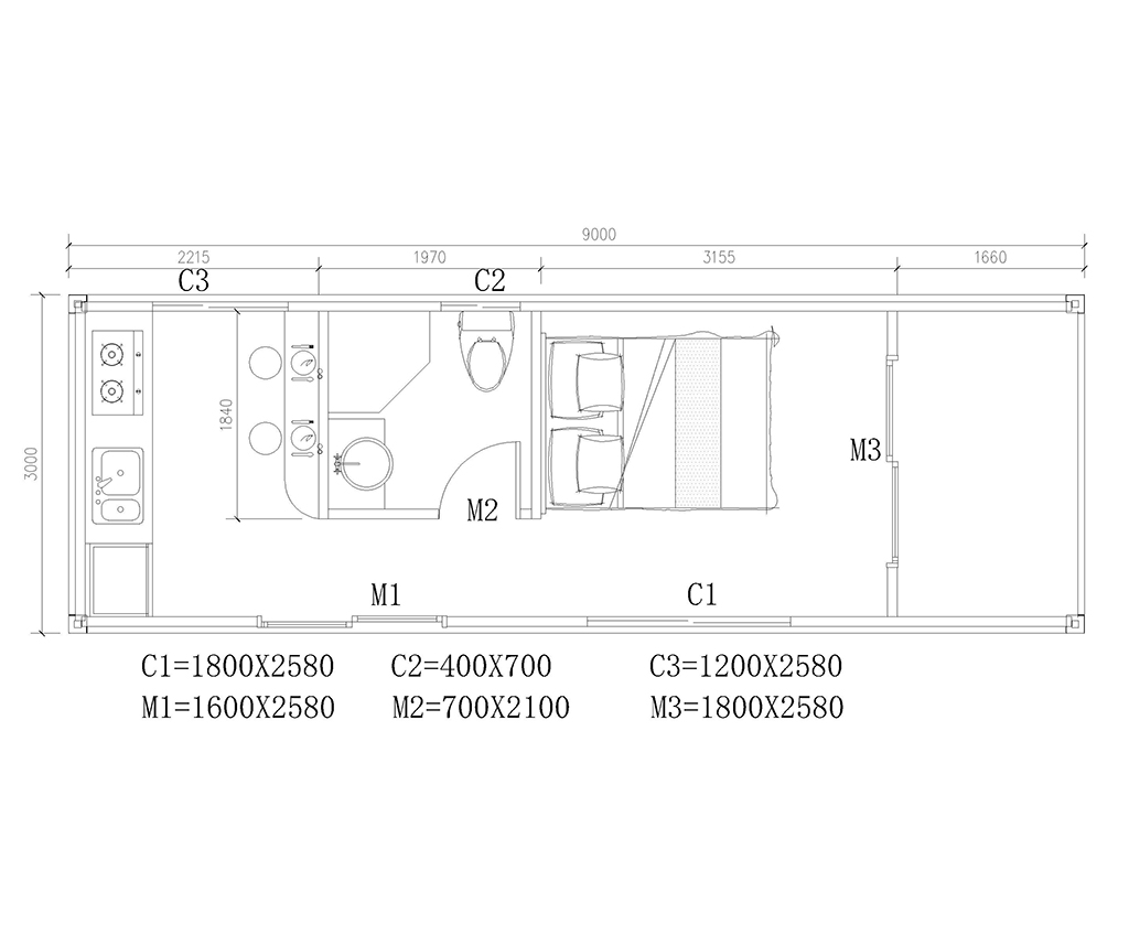
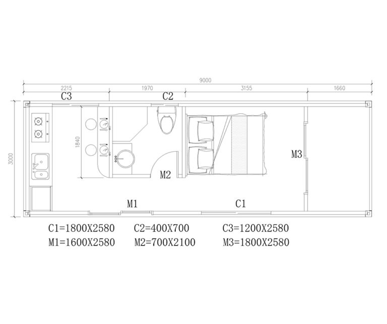
Luxury 1-Bed Container Home: 1 Living Room & Balcony

● For more information please contact me
● Get product catalog

Luxury 1-Bed Container Home: 1 Living Room & Balcony

● For more information please contact me ● Get product catalog

Container House Product Parameters

Structural and material properties
Frame Material Q235B, a carbon structural steel, with a hot-dip galvanized surface treatment (thickness up to 2.3mm).
Core Material/Insulation Material Rock Wool / Mineral Wool (RW) ; Expanded Polystyrene (EPS) ; Polyurethane (PU / PUR) ; Polyisocyanurate (PIR) ; Glass Wool
Insulation Performance (R-value)
  • PUR: R-6.0 to R-7.0 /in
  • PIR: R-6.5 to R-: 8.0 /in
  • RW: R-3.0 to R-4.0 /in
  • EPS: R-3.6 to R-4.2 /in
  • XPS: R-5.0 /in
  • VIP: R-25 to R-45 /in
  • Aerogel Blanket: R-10 /in
  • Phenolic Foam: R-7.0 to R-8.0 /in
Wall Panel Thickness 50-200 mm
Floor Material
  • SPC Flooring (Stone Plastic Composite)
  • LVT (Luxury Vinyl Tile)
  • Engineered Wood Flooring
  • Laminate Flooring
  • Ceramic Tiles / Porcelain Tiles
  • Bamboo Flooring
  • Fiber Cement Board
  • Marine-grade Plywood
Floor Thickness Customizable
Custom Projects Color, Size, Shape, Material, Other
Origin Foshan, Guangdong, China
HS Code 9406900090
Delivery Area Land transport: Southeast Asia, South Asia, Central Asia, and Europe. Sea transport: Countries/regions with seaports.
Manufacturer 14+ Years Original Manufacturer
Certificate ISO, CE, SGS
Production Capacity 2000/Month
Minimum Order Quantity The capacity of one shipping container
Fire resistance rating
  • Rock Wool / Glass Wool : Class A / Non-combustible
  • PIR : Class B1 / Flame Retardant
  • PU / EPS: Class B2 / Combustible
wind resistance 110 – 140 km/h (Force 10-12 winds / Category 1 Hurricane )
seismic intensity up to a Magnitude 8.0 earthquake
roof load-bearing capacity 1.5 – 4.5 kN/m²
sound insulation 25-55 DB
service life 15-30 years
installation speed
  • Folding Container: 2-3 people & 10-15 mins / unit
  • Flat Pack: 3-4 people & 3-4 Hours / unit
  • Detachable: 3-4 people & 0.5- 1 Day / unit
  • Pre-assembled: Only a crane & 30 mins / unit
transportation method(40HQ)
  • Detachable container house: 16 sets
  • Flat pack container house: 8 sets
  • Expandable container house: 2 sets
Interior integration
  • Electrical & Lighting: Pre-wired Electrical System / Pre-wired Electrical System / Smart Home Integration / Quick-connect Terminals
  • Plumbing & Sanitary: Modular Bathroom / Bathroom Pod / Integrated Plumbing System / PEX/PPR Piping / Wet Area Waterproofing
  • Wall & Floor Finishes: Integrated Wall Panels / SPC Flooring (Stone Plastic Composite) / Acoustic Insulation / Sound Dampening / Thermal Barrier / Vapor Barrier
HVAC system
  • PTAC (Packaged Terminal Air Conditioner)
  • Mini-Split System / Ductless System
  • ERV (Energy Recovery Ventilator) / HRV
  • Electric Baseboard Heater
  • Underfloor Heating / Radiant Floor Heating
Intelligent module
  • Smart Lighting Control
  • Smart HVAC Management
  • Automated Shading / Smart Blinds
  • Digital Access Control
  • Energy Monitoring System
  • Environmental Sensors
Customized exterior
  • WPC Cladding (Wood Plastic Composite)
  • Fiber Cement Siding
  • Aluminum Composite Panels (ACP)
  • Natural Wood Siding
  • (Cedar/Pine)
    Vertical Metal Corrugated Panels
  • Curtain Wall System
  • Double/Triple Glazed Windows
  • Panoramic Glass Wall
  • Bridge-cutoff Aluminum Frames
  • Sliding Glass Doors
  • Rooftop Terrace / Deck
  • External Staircase
  • Canopy / Awning
  • Custom Paint (Fluorocarbon Coating)
  • Vertical Garden / Living Wall
Commercial & OfficeModular Office / Corporate Campus / Co-working Space / Pop-up Shop / Retail Outlet / Showroom / Sales Center / Cafe / Coffee Shop / Bar
Accommodation & ResidentialWorker Dormitory / Workforce Housing / Student Housing / Granny Flat / Accessory Dwelling Unit (ADU) / Tiny Home / Minimalist Living / Holiday Home / Vacation Rental (Airbnb)
Public Service & EmergencyEmergency Shelter / Field Hospital / Mobile Clinic / Disaster Relief Housing / Information Kiosk / Tourist Center / Public Restroom / Sanitary Unit
Industrial & ScientificRemote Research Station / Data Center / Server Room / Energy Storage System (ESS) Container / Control Room

T/T: You will often see “30% T/T deposit, 70% T/T balance,” meaning a 30% down payment is required by wire before production, with the remainder due before shipping.
How it Works: Funds are moved electronically, typically via the SWIFT network, and take 1 to 5 business days to clear.
Required Info: To send a T/T, you need the recipient’s name, bank name, account number (or IBAN), and SWIFT/BIC code.
Fees: Banks typically charge between $10 and $50 per transaction, plus a currency exchange markup.


L/C: A Letter of Credit is a financial instrument, typically issued by a bank on behalf of a buyer (applicant), that guarantees payment to the seller (beneficiary), provided that the seller presents specific documents as proof that the agreed-upon conditions (e.g., shipment of goods, completion of work) have been met. 

Leading fourth generation container houses

Akay detachable container house structure diagram-2

Customize a variety of options according to your needs

7

Container Sizes

1

Color

2

Wall Panel (include core, wall panel thickness and color)

4

Wall Panel

5

Door & Window

Manufacturing Capabilities

Logistic Transportation

More Information

Established in 2012, our factory is situated in Foshan, Guangdong, China.
As a pioneer in prefabricated house, we offer a range of products including Detachable container house,Flat pack container house,Expandable container house,Foldable container house,A Frame house,space capsule house.
These are suitable for use as residences, offices, employee dorms, retail spaces, holiday homes, and temporary lodging.
As a distinguished manufacturer of prefabricated container houses, we are committed to delivering high-quality products at competitive prices.
Our aim is to offer the best Prefabricated House solutions to our clients. For more information on our products, please don’t hesitate to reach out.

1. Are you a manufacturer or a trading company?

Established in 2012, we are a prefabricated house manufacturer located in Foshan, Guangdong, China, about 30 kilometers from Guangzhou.

Container houses can serve as residences, offices, staff dormitories, or as shops, holiday homes, and temporary lodging.

Prefabricated container houses are sturdy, durable, easy to relocate, and environmentally friendly. They are quickly constructed and generally less costly than traditional houses.

 

The service life of prefabricated houses is comparable to that of traditional houses, typically ranging from 15 to 50 years, depending on the materials and environmental factors.

 

Container houses can effectively improve their thermal insulation performance by installing insulation materials, thus creating a comfortable living environment.

 

Yes, container houses can be customized based on customer requirements, including design layout, color, and functionality.

 

Get quotes and customize your ideas

请在浏览器中启用JavaScript来完成此表单。

Get in Touch

*We respect your confidentiality and all information are protected.

请在浏览器中启用JavaScript来完成此表单。
Wechat id: akay365, phone: 18942462189